NEO_TRIVIUM
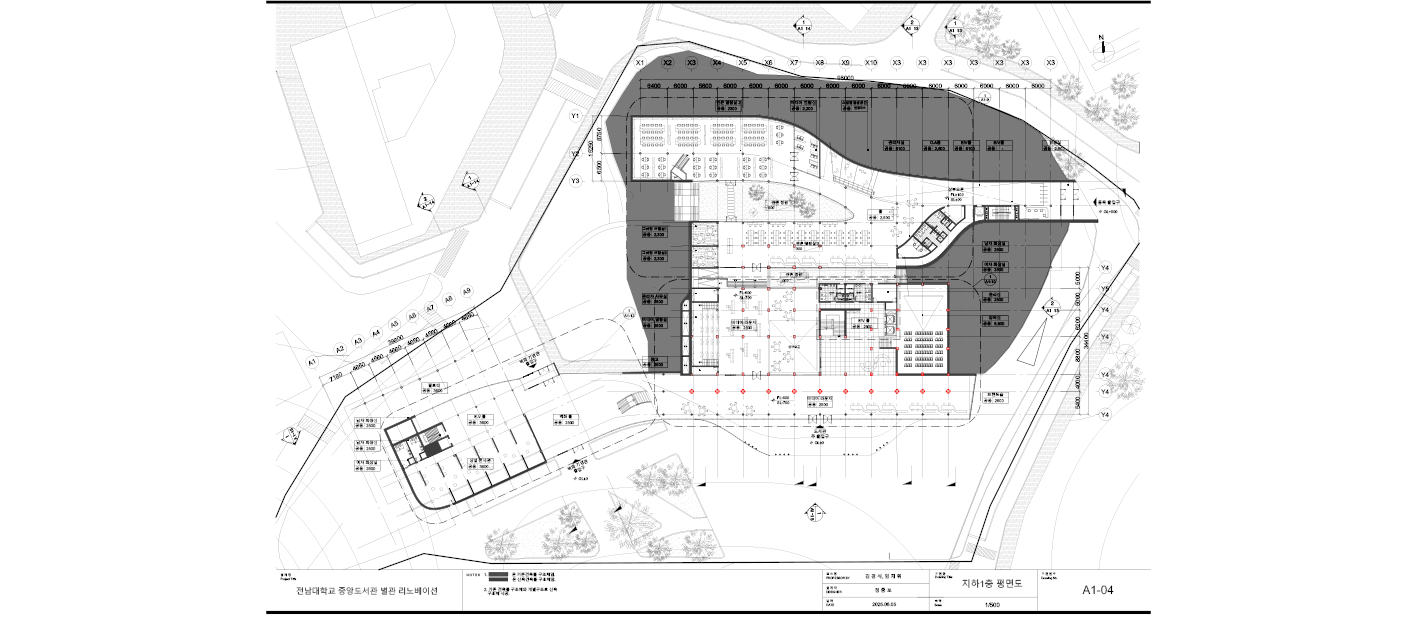
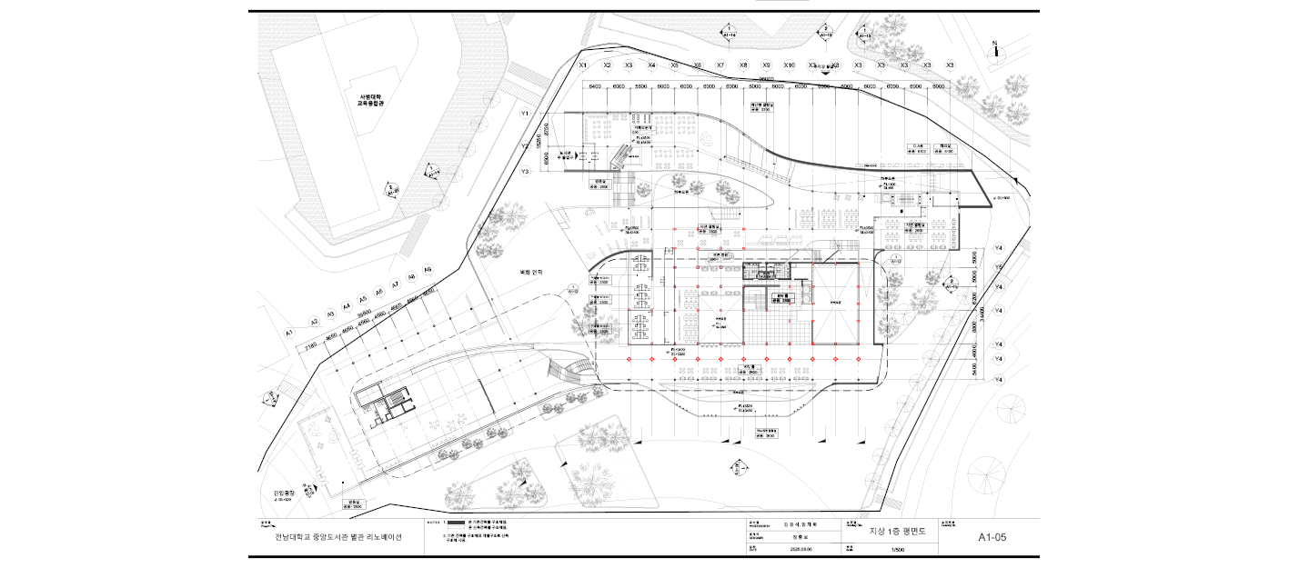
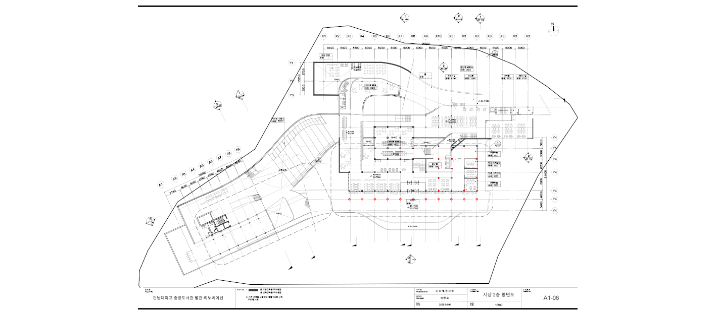
전남대학교 중앙도서관 별관, 일명 ‘백도’는 캠퍼스의 지리적 중심에 위치하지만, 오히려 학생들의 일상과는 단절되어 있었다. 백도는 높은 구릉 위에 지어진 건물로서, 신전형 입면과 단일 진입축 구조로 인해 권위적이고 폐쇄적인 공간성을 지녔다.
특히 북측과 동측, 서측은 오솔길과 숏컷(short cut)만이 존재해 진입이 불편했고, 접근 가능한 유일한 동선은 남측 광장 하나뿐이었다. 즉, 백도는 모두에게 열려 있어야 할 중심 공간임에도 불구하고, 특정 방향에서만 접근 가능한 동선만이 존재해왔다.
NEO_MONUMENTAL 건축은 누구나 쉽게 접근하고, 머물고, 선택할 수 있는 공간 속에 있어야 한다. 이 프로젝트는 백도가 가진 폐쇄성과 위계성을 문제 삼고, 이를 해체함으로써 ‘모두의 중심’을 회복하고자 한다.













