WITH CYCLING OFFICE
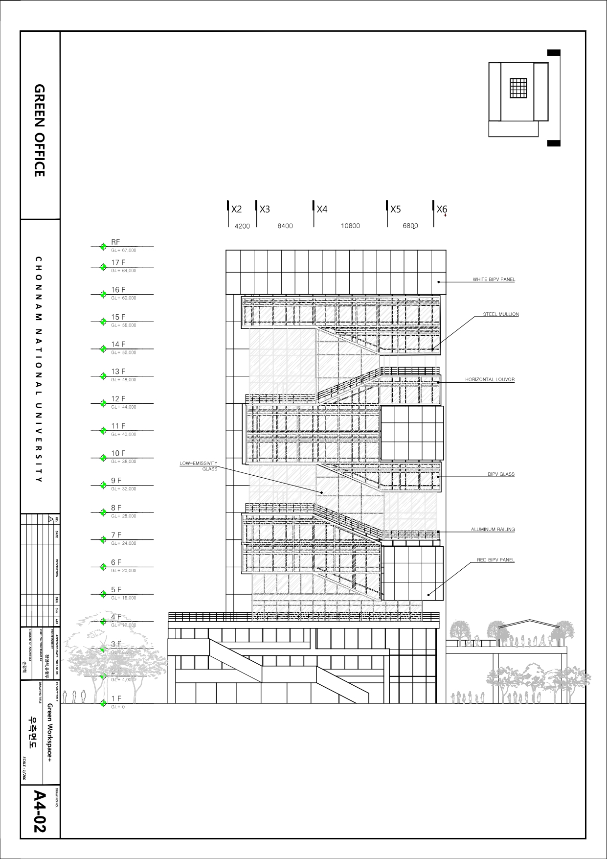
광주 동구 금남로 일대는 광주 패션의 중심지이며 점포 수 역시 매우 많음을 확인할 수 있다. 이렇게 패션을 소비하는 것은 우리에게 어떤 의미를 가지며 어떤 문제점을 발생시키는지 확인 후 그 해결책을 생각해 보아야 한다. 현시대에는 패스트 패션에 의해 패션소비가 증가하고 그에 따라 환경 오염 문제가 가속화되고 있다. 패션 업사이클링 기업의 사옥을 통해서 이 문제를 시민과 기업이 협업하여 해결할 수 있는 공간을 마련하기 위한 설계를 하였다. 시민들은 오피스 건물에 들어와서 쇼룸, 디자인 스튜디오, 소재 연구소 등을 거쳐 가며 옷의 생에 주기를 관찰하며 업사이클의 과정에 참여하며 붉은 계단을 통해 이용자들은 각 층을 순환하며 서로 소통한다. 내부의 아트리움과 외부의 루버를 통해 친환경적으로 실내 환경을 제어한다.

















